Nivelar el terreno

Para construir la pirámide, los egípcios debieron nivelar el terreno.

Orientar la pirámide

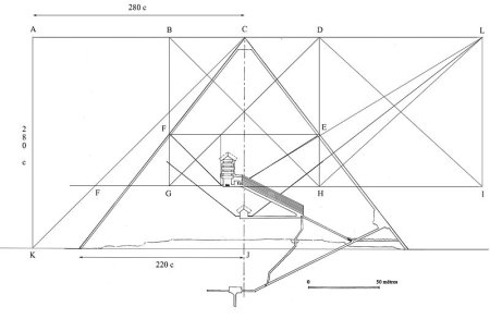
La pirámide de Kheops está orientada en la dirección de los puntos cardinales.

Trazar sobre el terreno la base de la pirámide

La pirámide de Kheops es una pirámide de base cuadrada, lo que representó trazar un cuadrado de grandes dimensiones sobre el terreno.

 


Alumnos participantes